qelectrotech

découvrez qelectrotech, la plateforme incontournable pour les professionnels de l'électricité et de l'électrotechnique. accédez à une vaste bibliothèque de schémas, de normes et d'informations techniques pour optimiser vos projets et améliorer vos compétences.

qelectrotech : Un Outil Indispensable pour les Professionnels de l’Électricité

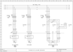
Dans un monde de plus en plus technologique, la conception de schémas électriques est devenue une compétence essentielle pour les professionnels de l’électricité. QElectroTech se présente comme un logiciel incontournable permettant à ces professionnels de créer facilement des diagrammes complexes. Que ce soit pour des installations électriques, pneumatiques ou même pour le chauffage, QElectroTech offre un éventail de fonctionnalités qui simplifient ce travail souvent ardu.

Ce logiciel, qui est *open source*, est conçu pour être à la fois puissant et accessible. Grâce à ses diverses fonctionnalités, il est capable de gérer des projets de grande envergure, tout en supportant des formats variés pour l’exportation et l’importation des schémas. Cet article explorera en profondeur les diverses caractéristiques de QElectroTech, comment l’utiliser, ainsi que ses avantages comparés à d’autres outils disponibles sur le marché.

Les Fonctionnalités Clés de QElectroTech

QElectroTech se distingue par sa simplicité d’utilisation et ses nombreuses fonctionnalités robustes, permettant aux utilisateurs de réaliser des schémas électriques de manière intuitive. Parmi les fonctionnalités clés, on peut noter la possibilité d’importer des composants électriques standards tels que des relais, des disjoncteurs, et même des appareils domotiques. Le logiciel prend également en charge la création de symboles personnalisés, permettant aux utilisateurs d’adapter leurs schémas à leurs besoins spécifiques.

Interface Utilisateur Intuitive

L’une des premières choses que vous remarquerez en utilisant QElectroTech est son interface claire et conviviale. Conçue pour faciliter la création de schémas, l’interface a été pensée pour minimiser le temps d’apprentissage, permettant ainsi aux utilisateurs de se plonger directement dans leur projet. Les fonctionnalités de glisser-déposer rendent l’ajout de composants et la création de liens entre eux simples et rapides.

Gestion de Projets Complexes

QElectroTech permet aux utilisateurs de gérer plusieurs projets simultanément, rendant le logiciel idéal pour les grandes entreprises ou les petites équipes travaillant sur différents aspects d’une installation électrique. Les fonctions de gestion de version aident également à suivre les modifications et l’évolution des projets au fil du temps.

découvrez qelectrotech, la plateforme incontournable pour les professionnels de l'électrotechnique. accédez à des outils, des ressources et des normes pour simplifier vos projets électriques et améliorer votre efficacité. rejoignez notre communauté d'experts dès aujourd'hui !

Exportation et Importation de Schémas

Une autre caractéristique essentielle de QElectroTech est sa capacité à exporter et importer des schémas dans différents formats. Cela est particulièrement utile pour les professionnels qui collaborent avec d’autres, permettant une interopérabilité entre différents logiciels. Que ce soit pour des projets situés à l’international ou pour respecter des normes spécifiques, cette flexibilité est un atout majeur pour les utilisateurs de QElectroTech.

Documentation et Support

QElectroTech propose une documentation complète et des ressources en ligne, facilitant ainsi le processus d’apprentissage pour les utilisateurs. Que vous soyez un novice souhaitant explorer le logiciel ou un professionnel cherchant des fonctionnalités avancées, les tutoriels et manuels disponibles en ligne constituent une aide précieuse. De plus, des forums communautaires permettent d’échanger des conseils et des astuces avec d’autres utilisateurs.

Les Avantages de QElectroTech Comparé à D’autres Outils

Dans ce monde concurrentiel, plusieurs logiciels de création de schémas électriques existent. Cependant, QElectroTech se distingue de la concurrence pour plusieurs raisons. Tout d’abord, sa nature *open source* attire de nombreux utilisateurs, car cela signifie qu’il est gratuit et constamment amélioré par une communauté de développeurs dévoués.

Coût Efficacité

Le coût est souvent un facteur déterminant dans le choix d’un outil. Alors que de nombreux logiciels de CAO peuvent être coûteux, QElectroTech offre une alternative gratuite sans compromettre les fonctionnalités. Cela permet aux entreprises, indépendamment de leur taille, d’accéder à un outil puissant sans se ruiner.

Communauté Active et Riche en Ressources

QElectroTech bénéficie d’une communauté active qui contribue à son développement continu. Les utilisateurs peuvent bénéficier de mises à jour fréquentes, de nouveaux composants, et d’un support en ligne robuste. Cela contraste fortement avec des logiciels plus commercialisés qui peuvent restreindre l’accès à des fonctionnalités sans paiement supplémentaire.

découvrez qelectrotech, un outil essentiel pour les professionnels de l'électrotechnique. accédez à une base de données complète et à des fonctionnalités avancées pour concevoir vos schémas électriques et maîtriser vos projets complexes avec aisance.

Compatibilité Multiplateforme

Un autre avantage de QElectroTech est sa compatibilité avec plusieurs systèmes d’exploitation, y compris Windows, Linux et Mac OS. Cela en fait un choix idéal pour les équipes diversifiées utilisant différents environnements de travail. Contrairement à d’autres outils qui peuvent être limités à une seule plateforme ou qui nécessitent des logiciels supplémentaires, QElectroTech permet une flexibilité d’utilisation appréciée de tous.

Fonctionnalités Riches

En plus de sa facilité d’utilisation, QElectroTech offre des fonctionnalités riches qui permettent de simuler des circuits, d’analyser des données et de générer des rapports professionnels. Ces outils avancés sont souvent absents dans d’autres solutions gratuites, ce qui fait de QElectroTech un choix judicieux pour quiconque prenant le travail de conception au sérieux.

Alors Quelle est l’Avenir de QElectroTech ?

Alors que le monde continue d’évoluer avec des technologies de plus en plus sophistiquées, il est impératif pour des outils comme QElectroTech de s’adapter aux besoins croissants des utilisateurs. Les développeurs du logiciel s’engagent à améliorer continuellement son interface et ses fonctionnalités. Cela peut inclure l’intégration de nouvelles normes de développement durable, ce qui est particulièrement vital dans le secteur de l’énergie, où la transition vers des solutions plus propres et durables est en plein essor.

Intégration de l’Énergie Solaire

En tant que spécialiste de l’énergie solaire, l’intégration des aspects liés aux systèmes solaires dans les logiciels de conception de circuits pourrait offrir un grand potentiel. Cela pourrait estomper les frontières entre plusieurs domaines tels que l’électrotechnique et les énergies renouvelables. Les utilisateurs de QElectroTech pourraient simplement concevoir des schémas incluant des panneaux solaires et d’autres technologies vertes, renforçant ainsi le message de durabilité.

Engagement envers l’Innovation

Les futures versions de QElectroTech espèrent également bénéficier d’un soutien croissant de la part de la communauté internationale. Avec des contributions de développeurs passionnés du monde entier, chaque mise à jour peut apporter de nouvelles fonctionnalités adaptés aux derniers besoins des utilisateurs. Cela assure un développement constant et l’introduction d’outils innovants, garantissant ainsi que QElectroTech reste un leader dans le secteur des logiciels de conception électrique.

découvrez qelectrotech, l'outil ultime pour la création de schémas électriques et la documentation technique. bénéficiez d'une interface conviviale, d'une vaste bibliothèque de composants et d'une communauté active pour vous accompagner dans vos projets électriques. que vous soyez un professionnel ou un amateur, qelectrotech rend vos conceptions plus simples et efficaces.

Laisser un commentaire

Vous avez peut-être manqué

Panneau Photovoltaique Solaire Pro 4.9 (98%) 26483 votes

Recevez votre devis gratuit pour installer des panneaux photovoltaïque

X