quel section de câble pour tableau secondaire

découvrez notre sélection de câbles pour tableau secondaire, idéaux pour assurer une connexion électrique fiable et sécurisée dans vos installations. optez pour la qualité et la performance pour vos projets électriques.

Comprendre l’importance du choix de la section de câble pour tableau secondaire

La sélection de la section de câble appropriée pour un tableau secondaire est une étape cruciale dans l’installation électrique. Un choix inadapté peut entraîner des surcharges, des pertes d’énergie, voire des risques d’incendie. Une bonne compréhension des spécificités techniques et des normes en vigueur est essentielle pour garantir la sécurité et l’efficacité du système électrique. Les fabricants comme Schneider Electric, Legrand, et Siemens proposent un large éventail de solutions pour répondre à ces enjeux.

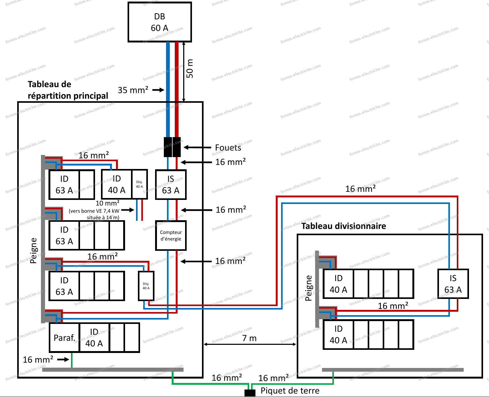
Un tableau secondaire doit être alimenté avec des câbles dont la section est déterminée en fonction de plusieurs critères :

  • La puissance nécessaire.
  • La distance entre le tableau principal et le tableau secondaire.
  • Le type de circuit : monophasé ou triphasé.
  • La capacité de courant supportée par les différentes sections de câble.

En choisissant une section de câble adéquate, on assure une distribution stable de l’énergie tout en prévenant les risques de courts-circuits et de surchauffe. Les différentes marques comme Murrelektronik, Hager, et Nexans proposent des fiches techniques précises qui aident à guider ce choix.

découvrez notre sélection de câbles pour tableau secondaire, conçus pour assurer une connexion électrique fiable et sécurisée. idéals pour vos projets d'électricité, nos câbles répondent aux normes en vigueur et garantissent une performance optimale.

Calcul de la section de câble

Le calcul de la section de câble pour un tableau secondaire repose sur la loi de Joule qui stipule que la chaleur produite dans un conducteur est proportionnelle au carré de l’intensité du courant. Pour garantir la sécurité, il est donc crucial de respecter les normes électriques en vigueur qui stipulent des sections minimales pour des puissances données.

Voici les étapes clés pour le calcul :

  1. Évaluer la puissance nécessaire en kilowatts (kW).
  2. Calculer l’intensité en utilisant la formule : Intensité (I) = Puissance (P) / Tension (U).
  3. Déterminer la longueur du câble et le type d’installation (intérieure ou extérieure).
  4. Consulter les tableaux de conducteurs des fabricants pour identifier la section appropriée.

Par exemple, si l’on envisage une installation avec 5 kW, et avec une tension de 230V, l’intensité sera de 21,73 A. En utilisant un tableau de référence, il apparaîtra que pour une distance de 30 mètres, une section de câble de 2,5 mm² serait souvent insuffisante. Il serait alors préférable de s’orienter vers une section de 6 mm² pour éviter des pertes de tension.

Normes et Réglementations en vigueur

Les normes électriques régissant la section des câbles sont essentielles pour garantir la sécurité des installations. En France, les normes NFC 15-100 et NF C 14-100 imposent des recommandations strictes sur le choix de la section des câbles en fonction des circuits et des puissances. Ces normes prennent en compte divers facteurs comme :

  • Le matériel utilisé (isolants, conducteurs).
  • Les conditions d’installation (température ambiante, exposition).
  • La nature de l’utilisation (résidentiel, industriel).

Cela signifie qu’une installation standard pourrait utiliser des câbles de 1,5 mm² pour les prises de courant, tandis que des tableaux secondaires ou des dispositifs à haute puissance nécessiteront des sections plus larges, comme 10 mm² en fonction de la distance et de la puissance à fournir.

Les marques telles que ABB, Deta, et Draka apportent aussi leur expertise dans la définition des sections en fonction des normes. Le respect de ces règles protège non seulement les biens matériels, mais également la vie humaine.

découvrez notre gamme de câbles pour tableaux secondaires, conçus pour assurer une connexion électrique fiable et sécurisée. idéaux pour les installations domestiques ou professionnelles, nos câbles respectent les normes de sécurité en vigueur et garantissent une performance optimale dans tous vos projets électriques.

Les différents types de câbles électriques pour tableau secondaire

Il existe plusieurs types de câbles électriques adaptés aux tableaux secondaires, chacun ayant des caractéristiques spécifiques. Le choix du bon type dépendra de l’environnement d’installation, de l’usage prévu, et des exigences techniques. Les câbles les plus employés sont :

  • Câbles souples : Flexibles et faciles à manipuler, recommandés pour les installations temporaires ou les endroits où des mouvements fréquents sont nécessaires.
  • Câbles rigides : Ils offrent une bonne résistance et sont généralement utilisés dans les installations fixes. Ces câbles sont plus adaptés lorsque la protection contre les coupures et les chocs est en jeu.
  • Câbles protégés : Dotés d’une gaine qui les protège des agressions extérieures, ces câbles sont idéaux pour les environnements industriels ou extérieurs.
  • Câbles à isolation renforcée : Ils sont conçus pour résister à des températures élevées. Idéaux pour les installations à forte puissance.

Caractéristiques des câbles de différentes marques

Les caractéristiques des câbles des différentes marques influencent leur performance. Par exemple :

Marque Type de Câble Section typique (mm²) Application
Schneider Electric Souple 1,5 à 25 Usage résidentiel, éclairage
Legrand Rigide 1,5 à 50 Usage industriel, courant fort
Siemens Protégé 2,5 à 35 Environnement hostile
Aujourd’hui Draka Résistant à la chaleur 4 à 100 Espace de travail arboré, conformité norme

Évaluation des besoins en fonction des installations

Avant de choisir un câble, il est essentiel d’évaluer le besoin spécifique du tableau secondaire. Plusieurs éléments doivent être pris en compte :

  1. Déterminer les appareils à alimenter et leur puissance nominale.
  2. Estimer la distance entre le tableau principal et le secondaire pour évaluer les pertes potentielles.
  3. Considérer le type d’installation, qu’elle soit en intérieur ou extérieur, et le besoin d’une protection accrue.

Après cette évaluation, il est conseillé de consulter les recommandations des fabricants comme Nexans, Hager, et Phoenix Contact pour les câbles adaptés, afin de garantir la conformité aux normes.

découvrez notre sélection de câbles pour tableaux secondaires, conçus pour assurer une connexion électrique sûre et performante. idéals pour les installations industrielles et domestiques, nos câbles répondent aux normes de qualité les plus strictes.

Éléments pratiques pour l’installation des câbles dans un tableau secondaire

L’installation des câbles électriques dans un tableau secondaire nécessite une approche structurée. Respecter les étapes préconisées permet non seulement d’optimiser la sécurité, mais également d’améliorer le fonctionnement de l’installation. Voici quelques bonnes pratiques :

  • Planifier minutieusement l’acheminement des câbles, pour éviter les trottinements et favoriser la densité de circuits.
  • Utiliser des accessoires de qualité provenant de marques réputées tels que Murrelektronik et ABB pour assurer la compatibilité et réduire les risques de court-circuit.
  • Respecter les normes de pliage et de fixation des câbles pour éviter les contraintes logiques pouvant affecter leur durabilité.

Accessoires nécessaires pour l’installation

Lors de l’installation des câbles électriques, plusieurs accessoires sont nécessaires pour garantir la sécurité et le respect des normes :

Accessoire Fonction Marques recommandées
Connecteurs Assurer une connexion fiable entre les câbles Legrand, Schneider Electric
Gaines thermorétractables Protection des connexions Hager, Murrelektronik
Fixations Maintenir les câbles en place Nexans, Deta

Précautions à prendre lors de l’installation

Plusieurs précautions sont nécessaires pour sécuriser une installation :

  1. Débrancher l’alimentation avant toute intervention.
  2. Utiliser des équipements de protection individuelle (EPI) tels que gants isolants et lunettes de protection.
  3. Tester le circuit après l’installation à l’aide d’un multimètre pour détecter d’éventuels défauts.

En respectant ces conseils, on réduit significativement les risques liés à l’alimentation électrique et on garantit une utilisation sûre et efficace des tableaux secondaires.

Laisser un commentaire

Vous avez peut-être manqué

Panneau Photovoltaique Solaire Pro 4.9 (98%) 26546 votes

Recevez votre devis gratuit pour installer des panneaux photovoltaïque

X