schéma unifilaire consuel
Le schéma unifilaire consuel joue un rôle essentiel dans la conception et la validation des installations électriques. Il permet d’obtenir une compréhension claire de la distribution de l’énergie tout en respectant les normes et les réglementations en vigueur. Sa représentation graphique offre une vision d’ensemble qui facilite la communication entre les différents acteurs du projet, qu’il s’agisse d’électriciens, d’architectes ou d’ingénieurs.
En outre, ce schéma constitue un instrument indispensable pour les demandes de raccordement auprès des gestionnaires de réseaux. Un schéma unifilaire bien conçu peut également contribuer à une meilleure efficacité énergétique et à une gestion durable des ressources.
Comprendre la structure du schéma unifilaire
Pour appréhender pleinement les aspects techniques du schéma unifilaire, il est crucial de décortiquer ses éléments constitutifs.
Éléments clés du schéma
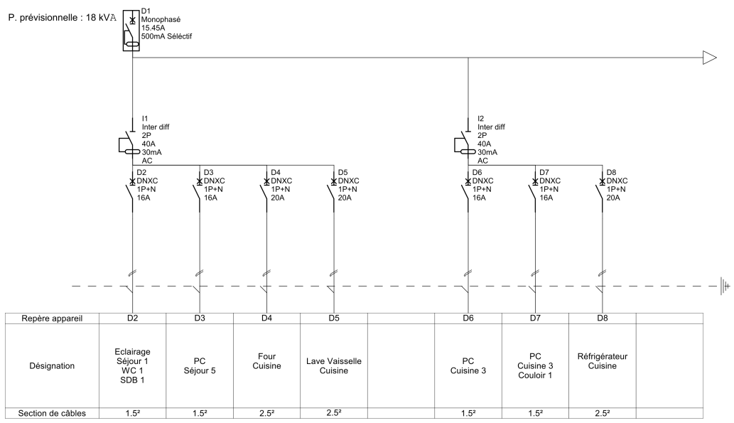
Le schéma unifilaire se compose principalement de symboles représentatifs des appareils et des composants électriques, ainsi que des lignes qui indiquent les connexions entre eux. Chaque symbole a une signification précise, permettant de distinguer les différents types d’équipements tels que les disjoncteurs, les transformateurs et les prises de courant.
Rôle des connexions
Les connexions, quant à elles, sont essentielles pour assurer le bon fonctionnement du système électrique. Elles illustrent comment l’énergie circule d’un élément à un autre. Le respect des normes lors de la réalisation de ce schéma est primordial pour garantir la sécurité et l’efficacité du réseau. Par exemple, lorsque vous préparez un schéma unifilaire photovoltaique, chaque détail compte afin que l’installation respecte les exigences réglementaires.
Importance de la conformité
La conformité aux normes est un aspect fondamental dans la réalisation d’un schéma unifilaire. La norme NF C 15-100 par exemple, réglemente les installations électriques en France. Un schéma unifilaire bien établi doit donc en tenir compte pour éviter les risques d’accident et garantir la fiabilité de l’installation.
Exemples de schémas
Des ressources telles que schémas unifilaire photovoltaïque sont disponibles pour les professionnels. Ces exemples permettent d’illustrer comment différents dispositifs peuvent être intégrés dans le schéma, contribuant ainsi à une meilleure compréhension et mise en œuvre.
Les étapes de création d’un schéma unifilaire consuel
Créer un schéma unifilaire consuel nécessite de suivre plusieurs étapes clés qui garantissent la conformité et le bon fonctionnement de l’installation électrique.
Analyse des besoins
Avant de tracer quoi que ce soit, une analyse des besoins énergétiques de l’installation doit être effectuée. Cela donne un aperçu des appareils nécessaires et de leur disposition.
Choix des éléments
Une fois l’analyse réalisée, il faut choisir les appareils adéquats. Les disjoncteurs, relais et interrupteurs doivent être soigneusement sélectionnés pour répondre aux exigences de sécurité et de performance.
Réalisation du schéma
C’est la phase où le schéma est effectivement dessiné. Les symboles doivent être précis et bien disposés afin de faciliter la compréhension. Une bonne pratique consiste à utiliser un logiciel spécialisé permettant de générer un schéma unifilaire photovoltaique à partir de modèles.
Revue et validation
Avant de soumettre le schéma aux autorités compétentes, une revue et une validation approfondies s’imposent. Ce processus peut impliquer des ingénieurs et d’autres experts pour garantir que toutes les spécificités ont été respectées.
Les erreurs courantes à éviter
De nombreuses erreurs peuvent survenir lors de l’élaboration d’un schéma unifilaire consuel. Les reconnaître peut éviter de sérieux problèmes à l’avenir.
Omissions dans le schéma
Une omission, même minime, peut avoir des conséquences importantes. Il est vital de s’assurer que tous les composants sont représentés et que les connexions sont correctement marquées.
Symboles inappropriés
Chaque symbole a une signification particulière. L’utilisation de symboles inappropriés peut prêter à confusion et entraver la compréhension du schéma. Par conséquent, il est crucial de se référer aux normes pour choisir les symboles adéquats.
Non-respect des normes
Ne pas respecter les normes en vigueur peut entraîner des risques pour la sécurité. Chaque installation doit respecter les règles établies afin de protéger les utilisateurs et assurer le bon fonctionnement de l’équipement.
Conseils pratiques
Il est recommandé de se former régulièrement sur les nouvelles normes et pratiques de l’industrie. De nombreux sites offrent des cours en ligne sur la réalisation de schémas unifilaires photovoltaiques et autres.
Évolution des technologies et impact sur le schéma unifilaire
Avec l’avènement des nouvelles technologies, les schémas unifilaires doivent évoluer pour répondre aux exigences changeantes des installations modernes.
Intégration des énergies renouvelables
Les installations photovoltaïques, notamment, nécessitent des schémas unifilaires adaptés à leur spécificité. La gestion des flux d’énergie doit être clairement indiquée pour assurer la sécurité et la performance.
Avantages de l’utilisation de logiciels spécialisés
Les logiciels de conception permettent de créer des schémas unifilaires de manière efficace et précise. Cela permet également d’intégrer facilement des éléments complexes, d’effectuer des vérifications et d’obtenir des mises à jour automatiques des normes.
Perspectives d’avenir
À l’avenir, l’automatisation et la numérisation des systèmes électriques devraient rendre ces schémas encore plus intuitifs et adaptés aux besoins des consommateurs. Les professionnels doivent rester informés des nouvelles tendances pour s’adapter en conséquence.


Laisser un commentaire